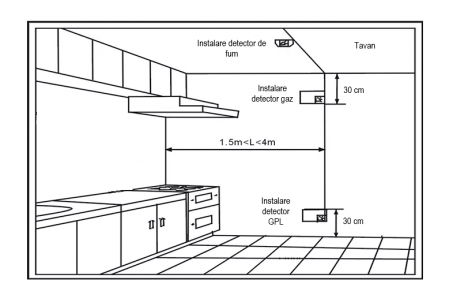
Detectorul de gaz, monoxid de carbon si incendiu HD8200 vine cu o electrovalvă de 3/4". Acest dispozitiv constituie un instrument esențial de protectie împotriva scurgerilor dăunătoare de gaze. HD8200 dispune de 3 senzori foarte precisi care detectează scurgerile de gaze toxice, alertând cu o alarmă sonoră vocala și lumini LED intermitente. Electrovalva permite un nivel suplimentar de siguranță prin oprirea automată a alimentării cu gaz în caz de urgență.